在購買實木門的時候,很多消費者納悶,都說是實木門,價格差異比較大,到底差異在哪些地方,今天就以力誠的木門為例,給大家講一下差距在哪里。買門的時候就不那么容易上當受騙了。
木工結構木工結構不一樣,拼框門是把一套門分成幾個部位分別制作貼皮,最后通過斗榫工藝拼接形成造型,而貼板門是做一個整門扇然后通過刀子挖槽造型,前者是把實木當原木做,后者是把實木當板式吸塑做,效果大不一樣,但是,木工成本高:100元/套。
漆水工藝

漆水完全不一樣,我們是嚴格按照美式涂裝的做法:木磨--灰磨--刷封固底漆--噴底色--噴底漆--油磨--搽格里斯--打毛刷--噴底漆--油磨--網紗--面修色漆--面漆,而市場上的貼板門,大多數的漆水只做了二底一面,甚至還有做一底一面的,少做一次,材料少一次,工錢少一次。漆工材料及工錢高:60-120元。
門扣線寬度

門扣線,我們標配的是7公分的門扣線,而市場上大多數標配的是6公分的門扣線,一套門的成本差距為:26元。
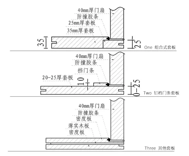
門套板

門套板,我們采用的是組合套板,而市場上很多采用的是訂檔門條的方式,這個美觀度大不一樣,但是,成本差距是:45元。
究竟是怎樣的內心?

市場上很多銷售價格在1000多的門,號稱填滿了的,實際上并沒有填滿,這點差距是40-70元。
超國標的厚度

厚度,很多門交門的時候邊框只有38-40厚,而我們現在是超國標45mm厚度,這點成本差距30元。
匠人的堅持只為做最好的門

很多時候我們依然堅持了部分部位手工貼皮,其實,這個門高檔不高檔,一個小細節,你們去看看貼板門,他拉一根小小的水縫能不能做到像我們這樣,水縫里的木紋和平面完全一致。他們能不能做到,這點不要拉水縫,不過成本差距:25元。

安裝,我們的安裝工人,把福利算起平均一套門大約工錢在115元,而外面的很多才80,差距:35元。
安裝輔料:我們可是包了發泡膠和釘子什么的,這點差距:15元。
售后服務成本差距,不說多了:15元。
好吧,我們不算外面有很多整人的亂算非標,亂算門套,亂算五金,不算扯皮,不算里面到底填的是什么亂七八糟的東西,光是以上的,成本差距就是:426元/套了。呵呵,這還是成本,按20%毛利算(除去費用就幾個點純利),我們的拼框門最少應該賣到比他們貼板門貴500多才差不多的利潤,而現在明顯沒有貴到這么多。







